Throwing You a Bona

Price : 200,000€   : 3   : 2   : 140 Sq.M

Reference : 2481 - Listed : April, 2026

Propiedad en español Versión en español

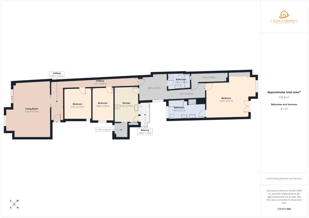
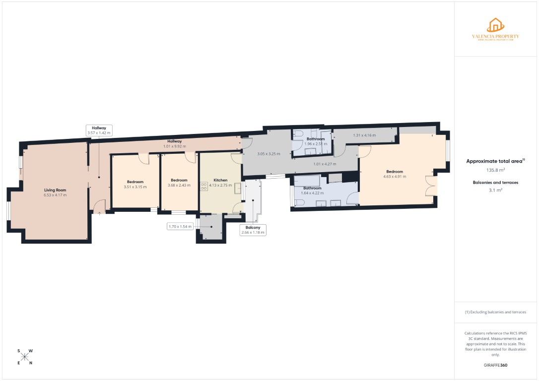
A great opportunity to be had here with 140m2 in the heart of a bustling town just 20 mins drive from Valencia. Located on the top floor of a two-story building with only one apartment per floor means plenty peace and quiet here for you should you decide to make this your residence but for anybody looking for investment opportunities, you can expect a very decent return here, and you can expect plenty demand. La Pobla de Vallbona is one of the more popular towns outside Valencia due to the public transport options (metro & bus) and its affordability compared to neighbouring La Eliana. And who knows, if you’re (un)lucky you might even bump into some VP royalty who just happen to live in this very town.

The apartment itself is perfectly liveable as it is but personally if I was making this my home I would probably change around a few things first. Maybe new windows and flooring and if you look at the floor plan, swapping the kitchen with the first bedroom and opening up that whole front part would make this an amazing living space. But all of that is optional as I say, nothing stopping you from moving in straight away and enjoying the Pobla life.

Lots of space at a very affordable price in an excellent location is the summary here so get in touch as you probably know by now that the good ones don’t hang about for long.

Please note that the asking price does not include transaction costs. Statutory taxes, notary fees, registry charges, and agency fees typically equate to an additional 15% above the purchase price.

You can read more here

Fill in the form for more information

All fields are required

Please enter this verification number 3916
in this box

Please note that the asking price does not include transaction costs. Statutory taxes, notary fees, registry charges, and agency fees typically equate to an additional 15% above the purchase price.

You can read more here
Travesia Del Mercat

Brought to you by Valencia Property

Features of this property

Air Conditioning

Built in Wardrobes

Roof Terrace

Cable Internet

Barbecue Area

Countryside Views

Walk Up/No Lift

Balcony

Metro Connections