Thinking Outside The Box

Price : 139,000€   : 1   : 2   : 208 Sq.M

Reference : 2278 - Listed : October, 2024

Propiedad en español Versión en español

Sometimes in life a challenge is needed and negotiating the property scene is one of those times. Especially when there are ever decreasing numbers of places available and prices for the basics have gone sky high then thinking outside the box may do wonders for you and your wallet. Here we have an example of how to do that.

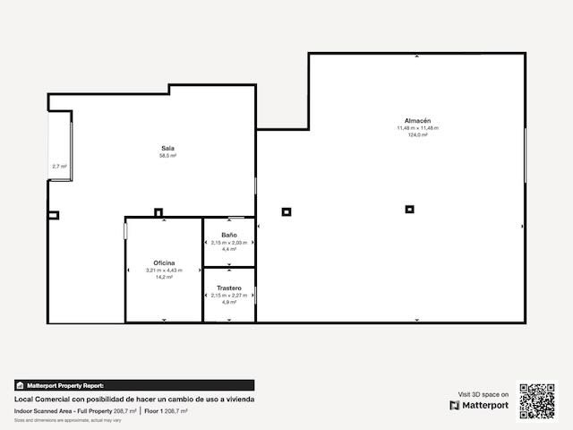
A huge 208m2 office but easily divisible into two.

As you can see from the photos and plan, currently it is set up as an office to the front and storage and parking to the rear. However... it faces out onto two streets so you might even want to split the property into two, depending on your plan and requirements, and have two offices giving you one for yourself and one for another company in order to get income from rental or even have it as a place for your teenagers to enjoy (In other words to get them out of your hair)

This space would cost you a pretty penny as a huge office already but we have an architect ready to get to work with you to get the permits necessary to change the layout of this place and perhaps divide it into two (I should know as he has just done it for me in the same street) and therefore to save yourself a good portion of that pretty penny.

So whether your idea is have an office here and have loads of space, to work here and maybe have a place for your hobbies or small business to the front or rear, or to actually use this as a commercial space for your incipient "Joy Division Oven Gloves" business then take a look and contact us for a visit. The possibilities are endless.

Links relevant to this page

La Pobla De Vallbona

Please note that the asking price does not include transaction costs. Statutory taxes, notary fees, registry charges, and agency fees typically equate to an additional 15% above the purchase price.

You can read more here

Fill in the form for more information

All fields are required

Please enter this verification number 4323
in this box

Please note that the asking price does not include transaction costs. Statutory taxes, notary fees, registry charges, and agency fees typically equate to an additional 15% above the purchase price.

You can read more here

Features of this property

Air Conditioning

Garage

Cable Internet

Double Glazing

City Views

Walkable to town

Storage

Good Bones

Needs Renovation

Needs a Kitchen

Similar Properties

€ 200,000

  • 1
  • 1

Typical Benidorm Apartment With Pool

Located in nearby Benidorm

Video of this property

Joy Division Oven Gloves - HMHB