This property is marked as 'Sold'

When a property is marked as sold, it is usually because a deposit has been left on the property, but we leave it onsite until completion in case the sale falls through at a later date. We remove it when the sale has completed.

If you are interested in properties like this then send us a mail letting us know your requirements and we will get back to you with suggestions


Out With The Old In With The Nou

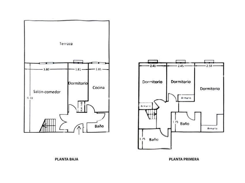
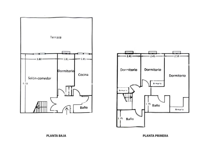
Price : 400,000€   : 4   : 3   : 150 Sq.M

Reference : 2310 - Listed : January, 2025

Propiedad en español Versión en español

Well we just listed an excellent property near the current, soon to be old Mestalla stadium so why not give you another choice right next to the soon to be new (nou) Mestalla. Not so close that you will be bombarded by hooligans screaming in your face wanting to know if you think Lim should or should not go home (If this scenario ever arises you say “yes, he should definitely go home”), but close enough that should you wish to go see this dumpster fire of a football team play in their shiny new home then it’s a quick 10 minute jaunt.

The property itself is a nice sized duplex with a great private terrace at the front and some communal space at the back including a swimming pool that is accessible 24h 365 days of the year and a little playground for the kids / drunk adults to enjoy. Built in the early 2000’s, it has 4 bedrooms but personally I would extend my kitchen into the downstairs bedroom and keep the 3 beds upstairs, a parking space and a storage room to boot. It is located on an avenue that sees a fair bit of traffic, but you have complete privacy, and the sound really isn’t intrusive at all.

This is one of the newer areas of the city, which for a while seemed a bit isolated. Not the case anymore though, there is plenty of local bars and restaurants to choose from and with this new stadium will come even more investment and infrastructure. And the cherry on top is you may see one or two of us working our core at the local outdoor gym right next to you. Who wouldn’t want to wake up to that sight?

Please note that the asking price does not include transaction costs. Statutory taxes, notary fees, registry charges, and agency fees typically equate to an additional 15% above the purchase price.

You can read more here

Fill in the form for more information

All fields are required

Please enter this verification number 2664
in this box

Please note that the asking price does not include transaction costs. Statutory taxes, notary fees, registry charges, and agency fees typically equate to an additional 15% above the purchase price.

You can read more here

Features of this property

Air Conditioning

Heating

Terrace

Pool - Community

Built in Wardrobes

Garage

Cable Internet

Fruit Trees

High Ceilings

City Views

Walkable to town

Storage

Community Garden

Bicycle Storage

Views

Metro Connections